Ash Island Kitchen Extensions Innovative design, quality build
Call for a FREE Quote 020 8166 5145
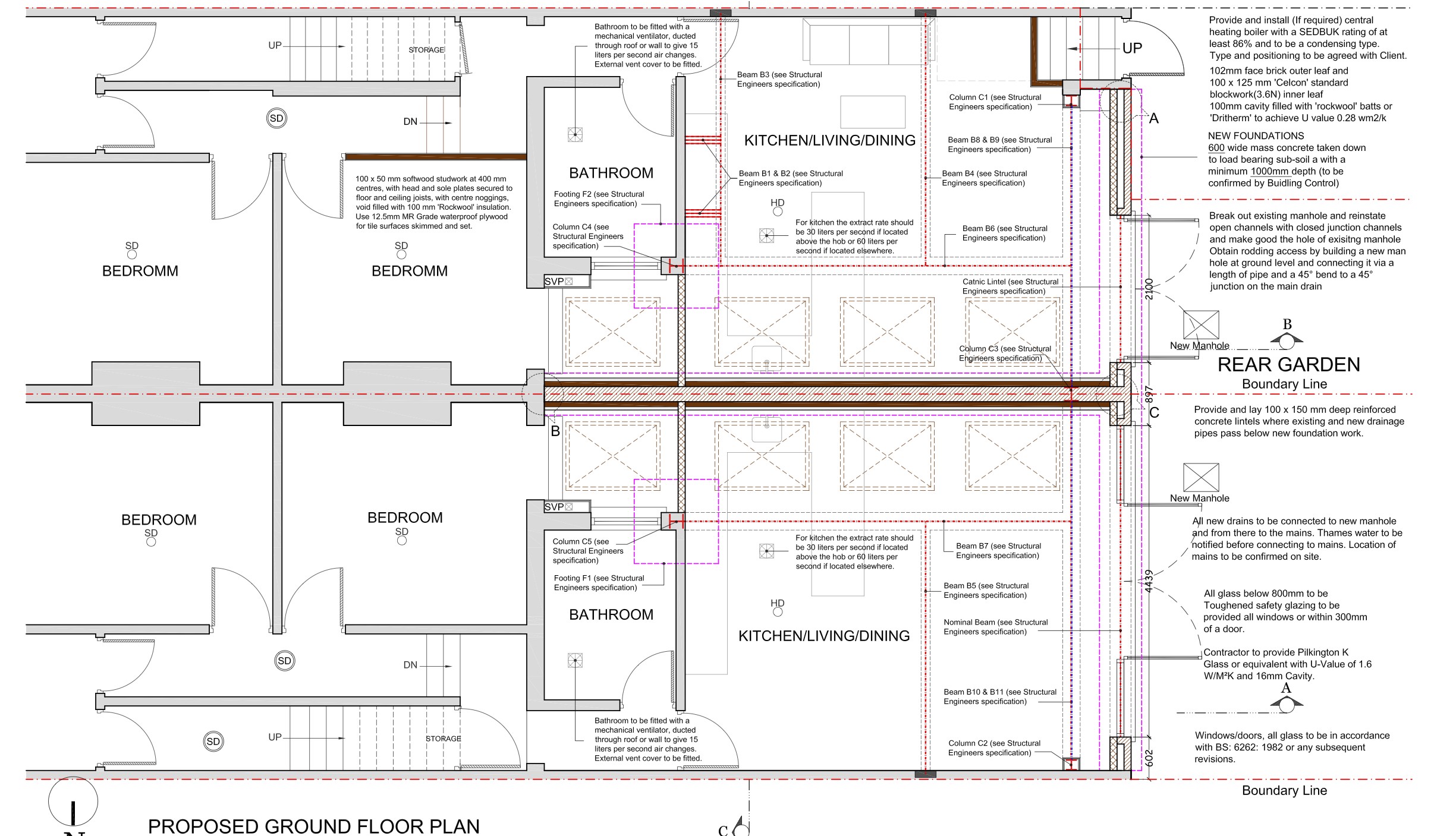
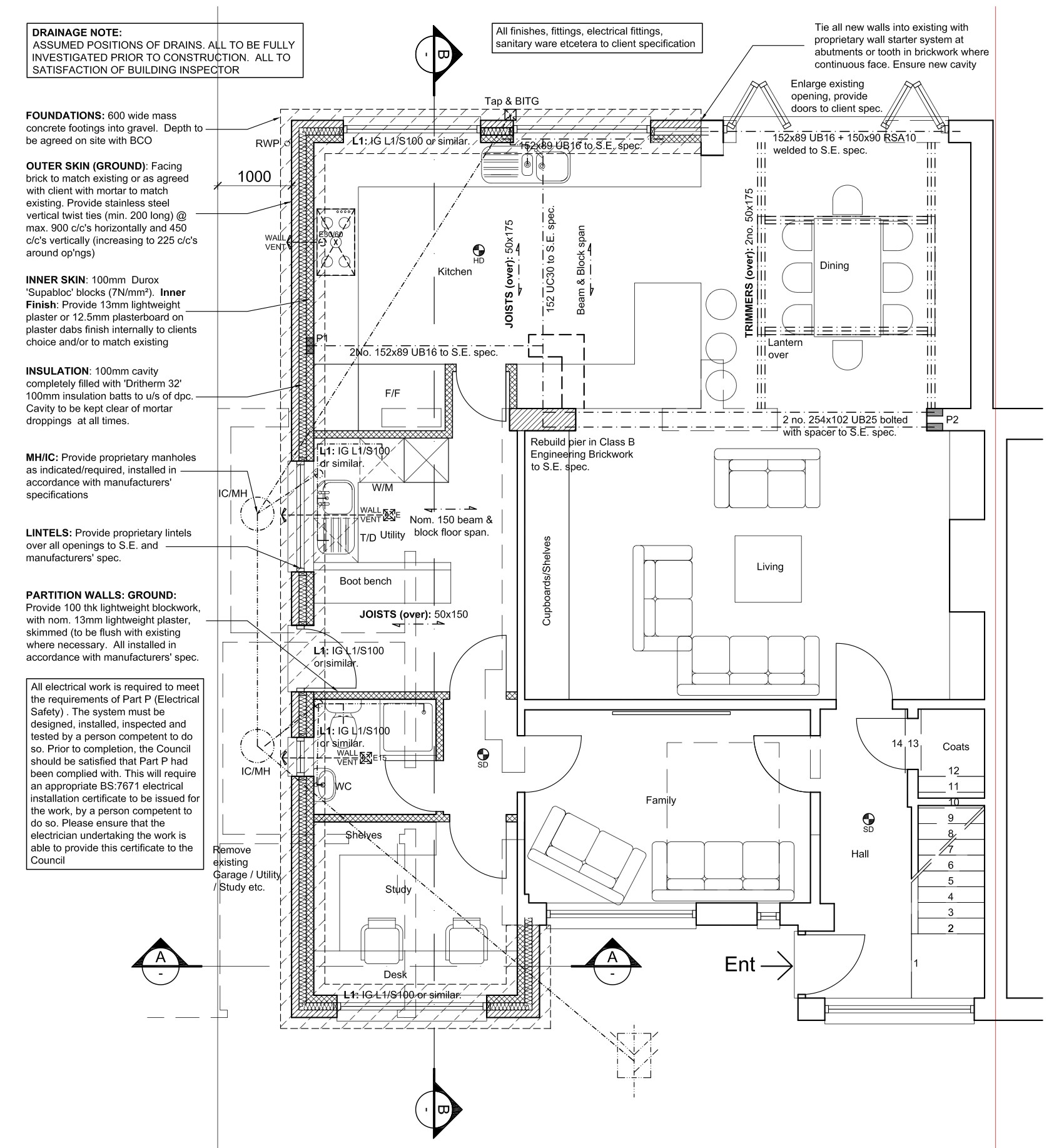
Architectural plans.